
Soluzioni abitative eleganti in affitto transitorio uso foresteria a Fucecchio
Fucecchio – Zona Residenziale e strategica
In prestigioso immobile di nuova ristrutturazione, immerso in un contesto residenziale silenzioso e circondato dal verde, proponiamo 4 appartamenti moderni, completamente arredati e pronti per essere abitati da metà gennaio.
Le soluzioni sono ideali per aziende, professionisti e clienti referenziati alla ricerca di un alloggio temporaneo di alto livello.
Dotazioni comuni a tutti gli appartamenti
-
Arredamento moderno, funzionale e completo
-
Cucina attrezzata con stoviglie, pentolame, lavastoviglie
-
Smart TV nella zona giorno
-
Wi-Fi
-
Riscaldamento autonomo
-
Lavatrice (in App. C presente anche asciugatrice)
-
2 posti auto dedicati per ciascun appartamento, situati all’interno del parcheggio privato della struttura, accessibile tramite cancello automatizzato
- Utenze escluse da calcolare in base ai consumi.
-
Ambienti pronti all’uso, finiture curate e comfort elevato
Soluzioni disponibili
Soluzione 1- Piano terra con giardino angolare
Appartamento che garantisce massima indipendenza e ampio spazio esterno.
Caratteristiche:
-
Ingresso indipendente tramite cancellino privato
-
Giardino angolare esclusivo
-
Loggiato coperto con accesso diretto all’abitazione
-
Soggiorno open space con sala da pranzo e cucina attrezzata
-
Due camere matrimoniali
-
Bagno finestrato con doccia
-
Zona lavanderia dedicata
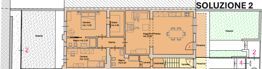
Soluzione 2– Piano Terra con Giardino Fronte-Retro
Soluzione funzionale e dotata di comodi spazi esterni.
Caratteristiche:
-
Ingresso indipendente tramite cancellino privato
-
Giardino frontale e giardino sul retro, entrambi esclusivi
-
Soggiorno-cucina open space
-
Camera matrimoniale con guardaroba
-
Cameretta
-
Due bagni con doccia
-
Zona lavanderia
Soluzione 3– Piano Primo con Loggiato Coperto e Giardino Angolare
Perfetta per chi desidera privacy, eleganza e spazi esterni funzionali.
Caratteristiche:
- Ingresso indipendente da cancellino privato
- Giardino angolare esclusivo
- Scala esterna che conduce al loggiato coperto e al balcone d’ingresso
- Soggiorno-cucina open space
- Due camere matrimoniali
- Bagno finestrato con doccia
- Locale lavanderia al piano terra
Soluzione 4 – Piano Primo con Soppalco e Camino Ornamentale
Unità dal design ricercato, caratterizzata da elementi architettonici di pregio.
Caratteristiche:
- Accesso tramite cancellino privato e piccolo spazio verde esclusivo
- Scala interna che conduce alla zona giorno
- Soggiorno-cucina open space con camino ornamentale
- Soppalco con affaccio sulla zona living
- Porta scorrevole in cristallo che separa il reparto giorno dalla zona notte
- Camera matrimoniale con stanza guardaroba
- Cameretta
- Bagno finestrato con doccia
- Zona lavanderia con lavatrice e asciugatrice





































