
Vendita – Immobile Direzionale/Commerciale di Ampia Metratura
📍 San Croce sull’Arno – Zona produttiva di trasformazione (P/S)
Proponiamo in vendita prestigioso immobile indipendente a destinazione deposito e direzionale, una soluzione ideale per aziende, professionisti e investitori che cercano una proprietà ampia, rappresentativa e facilmente adattabile a diverse tipologie di attività.
L’immobile si distingue per la sua versatilità e per la qualità degli spazi, risultando particolarmente adatto per sedi aziendali, showroom con logistica, poliambulatori, studi professionali, laboratori artigianali o attività commerciali con uffici e deposito.
Composizione dell’immobile
Corpo centrale
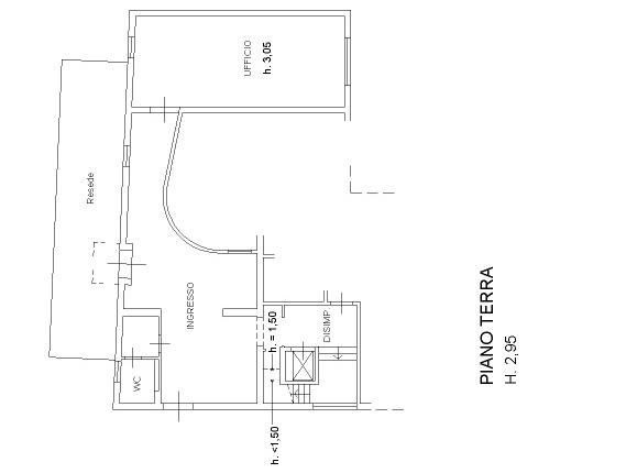
Piano terra – circa 450 mq
Ampio magazzino open space con ottima fruibilità degli spazi, dotato di ascensore che collega comodamente il piano superiore.
Ampio ingresso con zona destinata alla parte direzionale (ricezione e sala riunioni) .
Completano il piano due bagni e spogliatoi.
Piano primo – circa 330 mq
Area direzionale composta da 13 uffici luminosi, in parte separati da eleganti pareti in vetro che rendono gli ambienti moderni e molto luminosi. Gli uffici sono dotati di aria condizionata.
Il piano dispone inoltre di quattro bagni con antibagno e di una terrazza di circa 50 mq.
Secondo corpo distaccato (fronte fabbricato principale)
Fabbricato accessorio composto da annessi e autorimesse per una superficie complessiva di circa 210 mq.
Spazi esterni
La proprietà è completamente indipendente e accessibile tramite cancello privato.
Il resede esclusivo si sviluppa su circa 1.600 mq e offre ampia area di manovra e parcheggio. Parte dello spazio esterno è coltivata a giardino, elemento che contribuisce a valorizzare l’immagine complessiva dell’immobile.
Punti di forza
Ottimo stato di manutenzione
Finiture di pregio
Struttura versatile e facilmente modulabile
Ascensore interno
Uffici luminosi con pareti in vetro
Aria condizionata negli ambienti direzionali
Ampi spazi esterni con parcheggio
Posizione strategica in zona produttiva ben collegata
Questa proprietà rappresenta una soluzione ideale per chi desidera acquistare un immobile ampio, funzionale e rappresentativo, perfetto per ospitare attività strutturate o per realizzare una sede aziendale di prestigio.



























