
Attico di nuova ristrutturazione in Classe A2 – Empoli
In elegante contesto residenziale di sole 4 unità abitative, proponiamo in vendita un attico di nuova ristrutturazione in Classe Energetica A2, situato al secondo e ultimo piano di un piccolo edificio servito da ascensore.
L’accesso avviene da cancello automatico su cortile condominiale; al piano terra troviamo un ampio garage privato con bagno di servizio, ideale anche come zona lavanderia o piccolo laboratorio.
Salendo al secondo piano, tramite scala condominiale o ascensore, si accede all’abitazione tramite porta blindata.
L’attico si apre su un ampio e luminoso soggiorno open space con zona cucina, caratterizzato da grandi porte finestre che garantiscono luce naturale e calore agli ambienti.
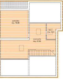
Dal soggiorno una scala di design conduce al soppalco, perfetto come zona relax, studio o area ospiti, completo di bagno dedicato.
La zona notte si compone di:
-
Disimpegno,
-
Ripostiglio,
-
Camera matrimoniale principale,
-
Cameretta con accesso al balcone,
-
Seconda camera matrimoniale con balcone privato,
-
Ampio bagno finestrato.
Attualmente l’immobile è in fase di ristrutturazione, offrendo la possibilità di personalizzare le finiture interne e usufruire di parte degli incentivi fiscali in corso.
🔧 Dotazioni e caratteristiche tecniche:
-
Classe Energetica A2
-
Riscaldamento a pavimento
-
Predisposizione per raffrescamento a pavimento
-
Predisposizione impianto d’allarme
-
Porta blindata
-
Ascensore
-
Garage privato con bagno
Un attico moderno, ideale per chi cerca comfort, efficienza energetica e tranquillità, a pochi minuti dai principali servizi e dal centro di Empoli.
Contattaci per maggiori informazioni o per prenotare una visita in cantiere!







