
VENDITA DUE APPARTAMENTI IN NUOVA RISTRUTTURAZIONE – ZONA CENTRALE
Proponiamo in vendita due soluzioni abitative situate in un elegante palazzo in fase di completa ristrutturazione, nel cuore di una zona centrale e ben servita, comoda a tutti i principali servizi.
Soluzione A – Bilocale al Piano Terra
Appartamento di circa 50 mq, composto da soggiorno-pranzo open-space, disimpegno, bagno, camera matrimoniale e ripostiglio. Un’opportunità perfetta per chi cerca una soluzione comoda e funzionale, con finiture moderne e di qualità.
RICHIESTA: 165.000 euro
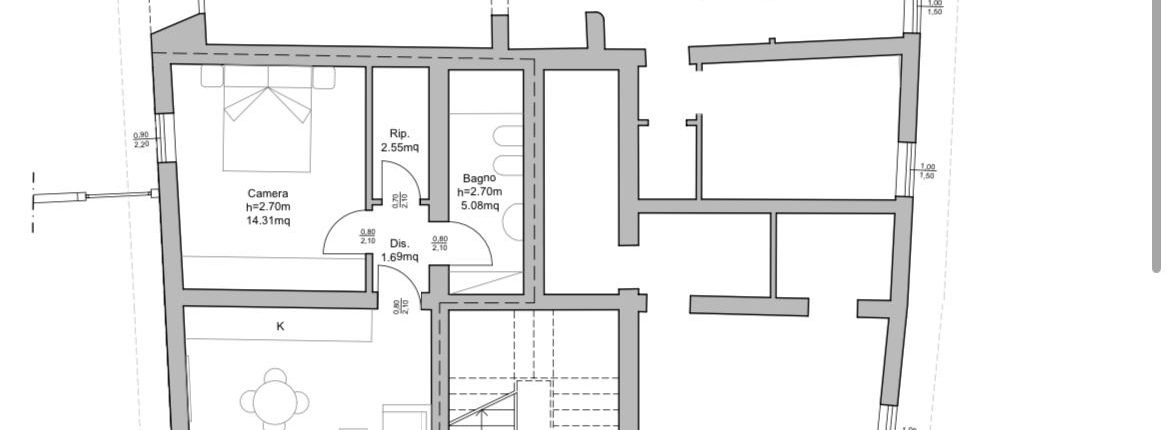
Soluzione B – Trilocale su due livelli (Primo Piano)
Con una superficie utile lorda di circa 72 mq, questa soluzione si sviluppa su due livelli ed è così composta: al primo piano soggiorno con cucina open-space, bagno, camera matrimoniale con cabina armadio. Al secondo piano troviamo un’ulteriore camera, bagno e un terrazzo a tasca, ideale per momenti di relax all’aperto.
RICHIESTA: 250.000 euro
Caratteristiche Comuni di Entrambi gli Appartamenti:
- Posizione strategica, in zona centrale e ben collegata, vicina a tutti i principali servizi (scuole, supermercati, mezzi pubblici, ecc.).
- Ristrutturazione completa che prevede il rifacimento ex novo di tutti gli impianti elettrici, termo-idro-sanitari e di smaltimento delle acque reflue.
- Ottimizzazione delle prestazioni energetiche con installazione di nuovi infissi con frangisole, coibentazione dei solai di copertura e realizzazione di un vespaio areato al piano terra.
- Impianto di climatizzazione con pompe di calore inverter e fancoil, funzionali sia per il riscaldamento che per il raffreddamento degli ambienti.
- Pannelli fotovoltaici in copertura per una maggiore efficienza energetica e un minore impatto ambientale.
Le soluzioni sono ideali per chi cerca un’abitazione moderna, funzionale e attenta all’efficienza energetica.
Contattaci per maggiori informazioni e per prenotare una visita!







