
Se stai cercando una casa spaziosa, accogliente e ben servita, questo appartamento è la scelta perfetta per te! A Fucecchio, in una zona centrale e ben collegata a tutti i servizi essenziali, offre 140 mq di comfort e funzionalità, ideali per una famiglia o per chi desidera ampi spazi abitativi.
📍 Dove si trova?
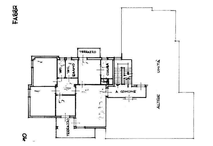
L’appartamento si trova al primo piano di un tranquillo stabile di sole sei unità abitative, distribuite su due piani, garantendo un ambiente riservato e sereno.
🛋️ Gli interni
Entrando, si viene accolti da un grande soggiorno luminoso, perfetto per momenti di relax e convivialità, con accesso a un balcone abitabile, dove poter godere di un caffè al mattino o di una cena all’aperto.
La cucina abitabile, ampia e funzionale, è affiancata da una spaziosa sala da pranzo e da un praticissimo vano dispensa, pensato per organizzare al meglio ogni necessità. Da qui, si accede a una terrazza attrezzata, dotata di lavatoio e punto acqua, uno spazio perfetto per stendere il bucato e per ogni esigenza domestica.
La zona notte è composta da due camere matrimoniali spaziose, ideali per garantire il massimo comfort e tranquillità. Inoltre, è presente un comodo studio, perfetto per lavorare da casa o per essere utilizzato come stanza aggiuntiva. Completano la casa due bagni, uno dotato di doccia e servizi, l’altro con servizi. Nella zona di ingresso delle camere, è stato ricavato un comodo spazio per scarpiera, un dettaglio pratico che ottimizza l’organizzazione degli ambienti.
🚗 Garage e parcheggio
Al piano terra, con accesso sia dal vano scale che direttamente dall’esterno, si trova un ampio garage di 20 mq, perfetto per auto, moto o per essere utilizzato come spazio di deposito. Inoltre, il parcheggio condominiale consente di trovare sempre posto senza difficoltà.
🌿 Spazio esterno
Di fronte alla casa, un piccolo spazio verde recintato offre la possibilità di creare un piccolo orticello o semplicemente di godersi un angolo di natura a pochi passi da casa.
🔥 Comfort e impianti
L’appartamento è dotato di riscaldamento autonomo con caldaia a condensazione e di aria condizionata indipendente, per garantire il massimo benessere in ogni stagione.
🔑 Un’opportunità imperdibile!
Se desideri una casa spaziosa, luminosa e ben collegata, questa è la soluzione perfetta per te. Non lasciarti sfuggire questa occasione!
📞 Per informazioni e visite : Agenzia Immobiliare Sgherri 3358758076-05711961207
- saggiorno
- soggiorno
- cucina
- cameretta
- terrazza
- camera matrimoniale
- camera matrimoniale
- studio
- bagno
- bagno
- bagno
- bagno
- garage















